Rodinný dom na predaj v lokalite Ľubotice v okrese Prešov
Ponúkame na predaj rodinný dom - typu bungalov (novostavba vo výstavbe) v meste Prešov v časti Ľubotice.
Žiadaná lokalita Prešova a to Ľubotice, kde prebieha výstavba rodinných domov v počte 6x, ponúka bývanie priamo v meste, s rýchlou dostupnosťou na sídlisko Sekčov, do hlavného obchodného ale aj priemyselného diania priamo v Ľuboticiach ako aj Strojnícka či Bardejovská ulica.
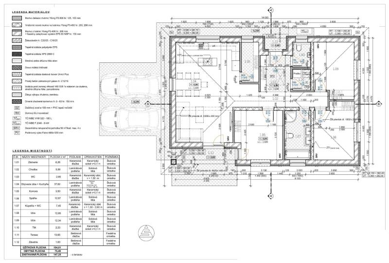
Plánovaná výstavba začína v skladbe 2x RD čím bungalov č. 4 sa nachádza na pozemku o výmere 483 m2 z čoho zastavaná plocha je 147 m2 ( vrátane terasy ).
Skladba rodinného domu:
- zádverie 6,26 m2
- chodba 5,99 m2
- WC 2,66 m2
- obývacia izba + kuchyňa 37,62 m2
- komora 3,93 m2
- spálňa 12,87 m2
- kúpeľňa + WC 7,45 m2
- izba 12,66 m2
- izba 12,34 m2
- technická miestnosť 2,23 m2
- závetrie 1,63 m2
- terasa o výmere 13 m2
- pivnica pod terasou pri domoch H4,H5,H6
Rodinný dom sa ponúka v stave holodom.
- základy a základová doska - betón, debniace tvárnice, obvodový plášť - Porobetón Ytong 300 mm, zateplenie fasády - polystyrén - 150 mm, vonkajšia omietka - silikón, sokel - farba marmolit, vnútorné priečky 120 mm, vnútorné omietky - základná biela farba, sadrokartónové podhľady, krov - strecha valbová, vylez do podkrovia - 40 m2 úložného priestoru, schody do podkrovia - sklápacie, zastrešenie - strešná krytina betónová, zateplenie stropu - striekana izolácia 300mm, kúrenie - teplovodné podlahové, zateplenie podlahy polystyrén 50 + 50 mm, podlaha - poter, príprava na tepelné čerpadlo, dažďové zvody - pozinkovaný plech, nad terén....
Interiér obsahuje: rozvody elektriny, vody, kanálu, ističová skriňa, 1x vývod svetla v každej miestnosti, vývod rozvodu pre práčku, sušičku, okná plastové Salamander/Hesta, vnútorné a vonkajšie parapety, plastové vstupné dvere
Exteriér: vývod vody, zásuvka / 220 V, vývod pre svetlo a vypínač ( vstup a terasa ), exteriérové žaluzie.
Pozemok: úprava terénu - štandard - len pod rodinným domom
V CENE NIE JE ZAHRNUTÉ: Úprava terénu, oplotenie, chodníky, dlažby, vnútorné vybavenie , tepelné čerpadlo, zásobník vody, oplotenie terasy.
Lokalita bude napojená na elektrinu, verejný vodovod, splaškovú a dažďovú kanalizáciu.
Popis lokality: Rodinné domy sa budú nachádzať v žiadanej lokalite v Prešove - časť Ľubotice, kde oceníte hlavne dostupnosť, či už potrebujete zájsť na nákup, k lekárovi, zaviesť deti do škôlky alebo školy, všetko je po ruke. Nehovoriac o túžbe ísť nakupovať do obchodného centra, zájsť do kina, alebo na prechádzku s rodinou. Rodiny s deťmi ocenia blízkosť detských ihrísk, obchodov, zdravotného zariadenia, kostola či potravín. Ľudia s aktívnym životným štýlom využijú blízky cyklochodník, alebo možnosť športovať na neďalekom ihrisku. V blízkosti sa nachádza reštaurácia Vintage Pub, cateringové služby Fajne Dobroty, potraviny Fresh Plus, Piváreň Pod Hájom,...
Pozrite si video upútavku k ponuke https://www.youtube.com/watch?v=y-x8c6EGFcc
V prípade záujmu ma neváhajte kontaktovať - Nikola Janoková - 0903 654 343
Podrobné informácie
Poloha nehnuteľnosti na mape
Ľubotice, Prešov, Slovensko


