5 a viac izbový byt na predaj v lokalite Ľubotice v okrese Prešov
Ponúkame na predaj 5-izbový mezonetový byt s terasou a balkónom v rodinnom dome typ B vo výstavbe s úžitkovou plochou 124,96m2 a s pozemkom o výmere 272m2 v projekte "IBV Ľubotice - Pod Hájom", ktorý sa nachádza priamo nad sídliskom Sekčov - Prešov. V pešej dostupnosti cca. 5 min k zastávke MHD a obchodnej zóne. Projekt zahŕňa 22 moderných dvojpodlažných rodinných domov typu mezonetové bývanie, ktoré ponúkajú komfort v blízkosti Prešova s výhodou vlastného pozemku, parkovania a pôsobivými výhľadmi na západ slnka. VÝSTAVBA UŽ PREBIEHA.
Všetky informácie nájdete na www.luboticepodhajom.sk
Skladba (typ B):
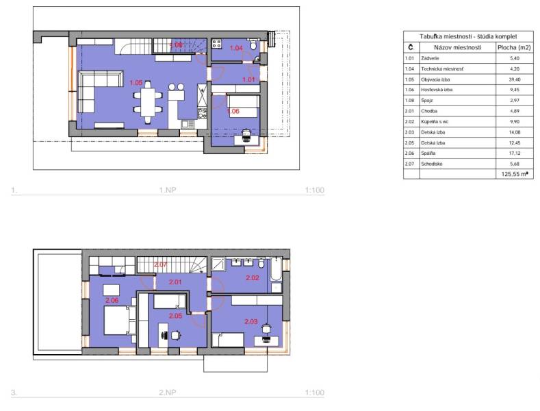
1. NP: zádverie, hosťovská izba, technická miestnosť, obývacia izba s kuchyňou, špajza, schodisko do 2.NP a terasa.
2. NP: chodba, kúpeľňa s WC, spálňa a 2 x izba, balkón.
Zastavaná plocha: 85,45 m2 + terasa 14 m2
Podlahová/Úžitková plocha oboch podlaží:
1.NP : 61,27 m2 + terasa 14 m2
2.NP : 63,69 m2 + balkón 16,3 m2
Spolu: 124,96 - bez terasy a balkóna
Ponúka sa v stave holobyt. Zahŕňa:
- základy a základová doska - armovaná,
- obvodový plášť - Leierplan 30 - brúsená tehla,
- strop 1NP - železobetónová stropná konštrukcia,
- strešná konštrukcia - monoliticky montovaný strop,
- zateplenie stropu - tepelná izolácia EPS v dvoch vrstvách 350mm,
- strešná krytina - strešná fólia mPVC fólia typu Fatrafol, štrkový zásyp,
- odkvapový systém
- schodisko - betónové
- okná 3 - sklo - 5 komorové - vnútorné a vonkajšie parapety,
- zateplenie fasády - polystyrén - 150 mm
- vnútorné priečky 120mm,
- vnútorná nosná stena 250mm,
- vnútorné omietky - základná biela farba,
- vonkajšia omietka - silikón, sokel - farba marmolit,
- sadrokartónové podhľady,
- zateplenie podlahy polystyrén,
- kúrenie - teplovodné podlahové,
- podlaha - poter,
- tepelné čerpadlo so zásobníkom vody, vonkajšia jednotka, termostat,
- lokálna rekuperácia,
- balkón - 2.NP + zábradlie,
- terasa - 1.NP (podľa projektu).
Interiér: rozvody sietí - elektrina, voda, kanál, ističová skriňa, 1 x vývod svetla v každej miestnosti, vývod rozvodu pre pračku, sušičku, plastové vstupné dvere.
Exteriér: vývod vody, zásuvka/220 V, vývod pre svetlo a vypínač (vstup a terasa), pozemok: úprava terénu - štandard - len pod rodinným domom.
V CENE NIE JE ZAHRNUTÉ: úprava terénu, oplotenie, chodníky, dlažby, vnútorné vybavenie.
SIETE
Nehnuteľnosť bude napojená na verejný vodovod, verejnú splaškovú a dažďovú kanalizáciu, elektrinu. V projekte bude vybudovaná prístupová cesta s osvetlením.
CENA
Cena nehnuteľnosti s pozemkom je 317 000€ a je uvedená vrátane DPH a provízie, ktorá v sebe zahŕňa kompletný právny servis a služby spojené s predajom nehnuteľnosti.
LOKALITA
V pešej dostupnosti: zastávka MHD, potraviny FRESH, obchodné centrum MAX, škôlka (2 min.), škola, reštaurácie, kaviarne, pizzerie, obchody, banky, bankomaty, ZOC Koral, MC Donald, detské ihriská, cyklistický chodník, oddychové zóny, čerpacie stanice, športový areál s futbalovým ihriskom, tenisové kurty, volejbalové ihrisko, bohatý kultúrny program v obci. Prístup k lokalite z 2 smerov (cez Ľubotice a cez Sekčov).
PREČO SA ROZHODNÚŤ PRE TENTO PROJEKT?
- bývanie na dedine s výhodami mesta,
- mezonetové bývanie s vlastnou terasou a balkónom,
- na výber 2 typy: 4-izbový typ A a 5-izbový typ B,
- vlastný pozemok - záhradka,
- parkovanie na vlastnom pozemku,
- žiaden sused nad vami,
- pre podnikateľov - možnosť kúpy s prenosom DPH.
Viac informácií nájdete na www.luboticepodhajom.sk alebo naše ďalšie výstavby na www.staviamebyvanie.sk.
Podrobné informácie
Poloha nehnuteľnosti na mape
Ľubotice, Prešov, Slovensko


